categorie: Articoli in vetrina » Elettricista a casa
Numero di visite: 54973
Commenti sull'articolo: 5
Cablaggio in una casa di legno - tipi e costo del lavoro
Negli ultimi anni, molti dei nostri compatrioti, iniziando la costruzione delle proprie case, preferiscono le classiche case in tronchi. E questo è comprensibile, perché si tratta di edifici ecologici realizzati con materiali naturali.
Tuttavia, tutti gli edifici in legno presentano un grave inconveniente, vale a dire un alto grado di combustibilità dei materiali di base. Le statistiche del Ministero delle Emergenze mostrano che la causa principale dell'incendio di edifici in legno è un cablaggio elettrico difettoso. Ecco perché i requisiti severi e obbligatori sono imposti sull'installazione elettrica nelle case di legno.
Se hai intenzione di costruire una casa in legno, la priorità sarà l'installazione di reti elettriche della futura casa. È necessario comprendere che l'installazione di cavi elettrici di alta qualità e, soprattutto, correttamente completata, è una garanzia per il vostro soggiorno confortevole e sicuro.
In questo articolo, proveremo a rivelare un argomento come il cablaggio elettrico in una casa di legno. Soffermiamoci più in dettaglio sui vantaggi e gli svantaggi dei vari tipi di installazione di cavi elettrici, nonché sui possibili costi finanziari. Avrai la possibilità di confrontare diversi metodi di cablaggio e scegliere quello più adatto a te.
Un esempio potrebbe essere una tipica casa di tronchi a due piani con una superficie di 245 metri quadrati.

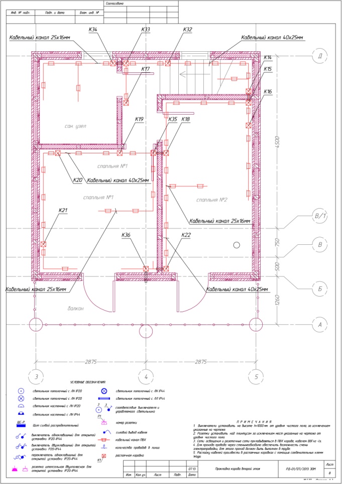
Per chiarezza di tutti i calcoli eseguiti, portiamo alla vostra attenzione uno schema del cablaggio elettrico nella casa specificata.
1 ° livello (clicca sull'immagine per ingrandire):
Schema di illuminazione:
Circuito elettrico:
Layout di uscita:
2 ° livello (clicca sull'immagine per ingrandire):
Circuito elettrico:
Schema di illuminazione:
Layout di uscita:
Successivamente, consideriamo più in dettaglio i tipi di cablaggio più popolari nelle case di legno.
Installazione elettrica in scatole di PVC
Condizioni ideali per il raffreddamento dei collegamenti elettrici;
Semplicità e praticità di cablaggio;
Accesso illimitato al cablaggio elettrico e possibilità di sostituire singole sezioni;
Possibilità di collegare ulteriori punti di energia elettrica.

Tuttavia, questo metodo presenta anche alcuni svantaggi, in particolare quando la struttura si restringe, sono possibili danni e deformazioni delle scatole di plastica. In questo caso, dovrai reinstallare i cavi elettrici in una casa di legno, in aree separate. Inoltre, visivamente tale cablaggio elettrico non è del tutto attraente e crea un certo contrasto in una casa di tronchi.
Installazione elettrica in scatole di PVC con rivestimento a parete
Questo metodo è usato come alternativa. Il rivestimento delle pareti con rivestimento e installazione in scatole di PVC viene solitamente eseguito per un semplice motivo. Spesso una persona, avendo costruito una casa e iniziato i lavori elettrici, si trova di fronte a un'offerta di prezzo elevato per i lavori elettrici.
Quindi, ad esempio, il costo dei fili per il cablaggio retrò è un ordine di grandezza superiore al solito, ecc. Tuttavia, i costi totali per questo metodo non sono molto diversi dagli altri tipi.
Secondo gli esperti, per le case in tronchi, questa non è l'opzione migliore. Non è pratico costruire una casa di tronchi al fine di rivestirla successivamente con un rivestimento.
Nota: se si prevede di coprire una casa dall'interno con un assicella, tutti i collegamenti elettrici devono essere eseguiti utilizzando uno speciale tubo corrugato in metallo. Questo metodo di posa dei fili è affidabile e soddisfa i requisiti di sicurezza antincendio.
Se hai scelto questo particolare metodo di installazione elettrica in una casa di legno, devi capire che l'elaborazione dei tronchi, lo stile di abbattimento e le caratteristiche della tecnologia di piegatura della casa non avranno più alcun significato dal punto di vista estetico, tutto questo sarà nascosto sotto il rivestimento.
Installazione tramite isolatori o cablaggio retrò
Questo metodo di installazione elettrica presenta numerosi vantaggi ed è un'opzione media per i costi. Ad esempio, il restringimento della struttura non influisce sulle condizioni del cablaggio elettrico. Anche se il filo si piega da qualche parte, è facile sollevarlo e portarlo nella forma corretta.
La posizione di tutti i punti elettrici può essere determinata dopo il completamento della costruzione. Inoltre, è possibile sostituire facilmente interruttori e prese difettosi o le relative posizioni.

Per quanto riguarda gli svantaggi di questo metodo, prima di tutto, è un'abbondanza di fili. Quindi in alcuni punti puoi avere fino a cinque o più fili separati, per non parlare del metterli in uno scudo di potenza, che a sua volta non sembra carino.
Cablaggio nascosto
Secondo la clausola 7.1.32 dell'istruzione PUE, nelle case di legno, il montaggio a filo è consentito solo con l'uso di tubi metallici. Un metodo nascosto per installare i collegamenti elettrici nelle case di legno è un processo che richiede tempo e, di conseguenza, il più costoso. Tuttavia, dal punto di vista dei designer, questo metodo è molto interessante.
L'installazione delle linee principali di cablaggio elettrico viene eseguita in fase di costruzione, prima della posa di pavimenti e soffitti. I cavi elettrici sono posati in tubi di acciaio e gli ascensori per interruttori, prese e dispositivi vengono eseguiti in fori verticali nel muro.
Il compito principale in questa fase è determinare con precisione la posizione prevista degli apparecchi elettrici in casa. Questo metodo di installazione presuppone che tutte le comunicazioni saranno nascoste e l'ulteriore regolazione dei punti elettrici è piuttosto complicata. In altre parole, non sarai in grado di trasferire o aggiungere un altro punto vendita senza significative violazioni degli interni della casa.
Per ulteriori lavori di installazione, è necessario elaborare un piano per la foratura dei fori verticali, che viene attuato in conformità con il piano per la posizione dei consumatori di corrente elettrica.
Importante quando si esegue il montaggio a filo:
Prima di tutto, devi assicurarti che il tuo edificio sia adeguatamente isolato o utilizzare il legname più spesso, almeno 240 mm. Non è un segreto che, nel caso del congelamento dell'edificio, i tubi metallici inizino a produrre condensa, causando la decomposizione dell'albero.
Qui, di non poca importanza è la capacità di determinare il punto di rugiada o, in altre parole, la temperatura alla quale si verifica la condensa e, in base a ciò, disporre i tubi con la profondità necessaria nel muro. E anche per questo, i materiali isolanti sono selezionati in base al calcolo dell'ingegneria del calore. È importante notare che non tutti gli specialisti possono effettuare tali calcoli.
È inoltre necessario considerare le questioni relative all'assicurazione immobiliare. Il costo del nostro edificio per la casa (245 mq) Al momento ammonterà a circa 6 milioni di rubli, rispettivamente, deve essere assicurato.
Se vengono rilevate gravi violazioni della sicurezza antincendio, è possibile che venga negata l'assicurazione sulla proprietà. Anche con il consenso dell'assicuratore, gravi violazioni delle norme di sicurezza possono successivamente diventare motivo di rifiuto dei pagamenti assicurativi in caso di evento assicurato.
Cosa scegliere o riprendere specialisti
Secondo gli esperti, per una casa in legno, l'opzione più adatta è combinare i due metodi di installazione elettrica. In particolare, si tratta di un cablaggio in stile retrò e un metodo di installazione nascosto. Dove è possibile nascondere il cablaggio elettrico nei pavimenti o nel pavimento, i fili sono nascosti e dove è necessario il cablaggio sul muro, è possibile utilizzare un filo retrò.
Analisi comparativa dei metodi e dei costi di cablaggio in una casa di legno:
materiale
io
Montaggio nascosto in tubi metallici
III
* Il costo medio su Internet, il calcolo non indica anche il costo di chiodi, isolamento, viti, ecc.
a) prezzo totale
b) prezzo con rivestimento
b) 334 426 sfregamenti
* Costo medio su Internet.
Va notato che per analisi e considerazione abbiamo preso elettrodomestici e prodotti inclusi nella stessa categoria di prezzo, ma in diverse varianti di montaggio. L'elenco comprende prodotti dei principali produttori di cablaggi elettrici in stile retrò del sud-est asiatico e dell'Europa. Si noti che i marchi qui presentati sono i marchi leader nel mercato interno.
conclusione:
Quale metodo di installazione elettrica non sceglieresti, dovresti capire che una casa di legno è fatta di materiali molto combustibili. E le gravi violazioni delle regole di cablaggio possono portare alle conseguenze più tristi. Cablaggio in una casa di legno, questo non è il caso in cui è possibile salvare.
Gli esperti raccomandano di affidare tale lavoro solo a specialisti qualificati con esperienza pertinente e utilizzano solo componenti e materiali di alta qualità. Affida il lavoro ai professionisti e ottieni il risultato desiderato e la massima sicurezza.
LLC "Salvador and Co"
Anno 2014
Vedi anche su electro-it.tomathouse.com
:







